THAO SHOPHOUSE
thiết kế nhà ở kết hợp kinh doanh là xu hướng đầu tư được rất nhiều người lựa chọn trong thời đại công nghệ. Đối với những ai may mắn có được mảnh đất ngoài mặt đường thì thường xây dựng những ngôi nhà phố kiểu hiện đại với tầng 1 dùng để kinh doanh buôn bán, tầng 2 cho thuê văn phòng và tầng 3 để ở là điều hết sức bình thường. Tuy nhiên điều khó khăn ở đây chính là làm sao để có thể thiết kế công năng sinh hoạt trong nhà sao cho hợp lí, để công việc kinh doanh buôn bán không bị ảnh hưởng. Khu vực kinh doanh và riêng tư được độc lập với nhau.
Mẫu thiết kế nhà ở kết hợp kinh doanh hiện đại
Đối với những mẫu nhà ở kết hợp kinh doanh hay nhà ở kết hợp văn phòng làm việc chính sự kết hợp hai trong một. Một nơi là không gian chung dành cho nhiều người ra vào qua lại, một nơi là không gian nghỉ ngơi thư giãn riêng cần sự kín đáo. Vậy nên để có thể dung hòa được hai không gian khác biệt này phải cần đến sự hiểu biết, kinh nghiệm của các kiến trúc sư tài năng. Với đội ngũ kiến trúc sư giàu kinh nghiệm và đầy lòng nhiệt huyết chúng tôi đảm bảo luôn mang đến cho bạn một không gian sống thoải mái và tiện lợi nhất.
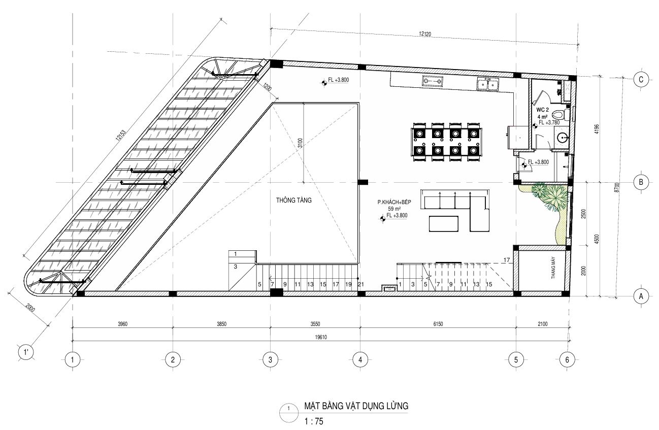
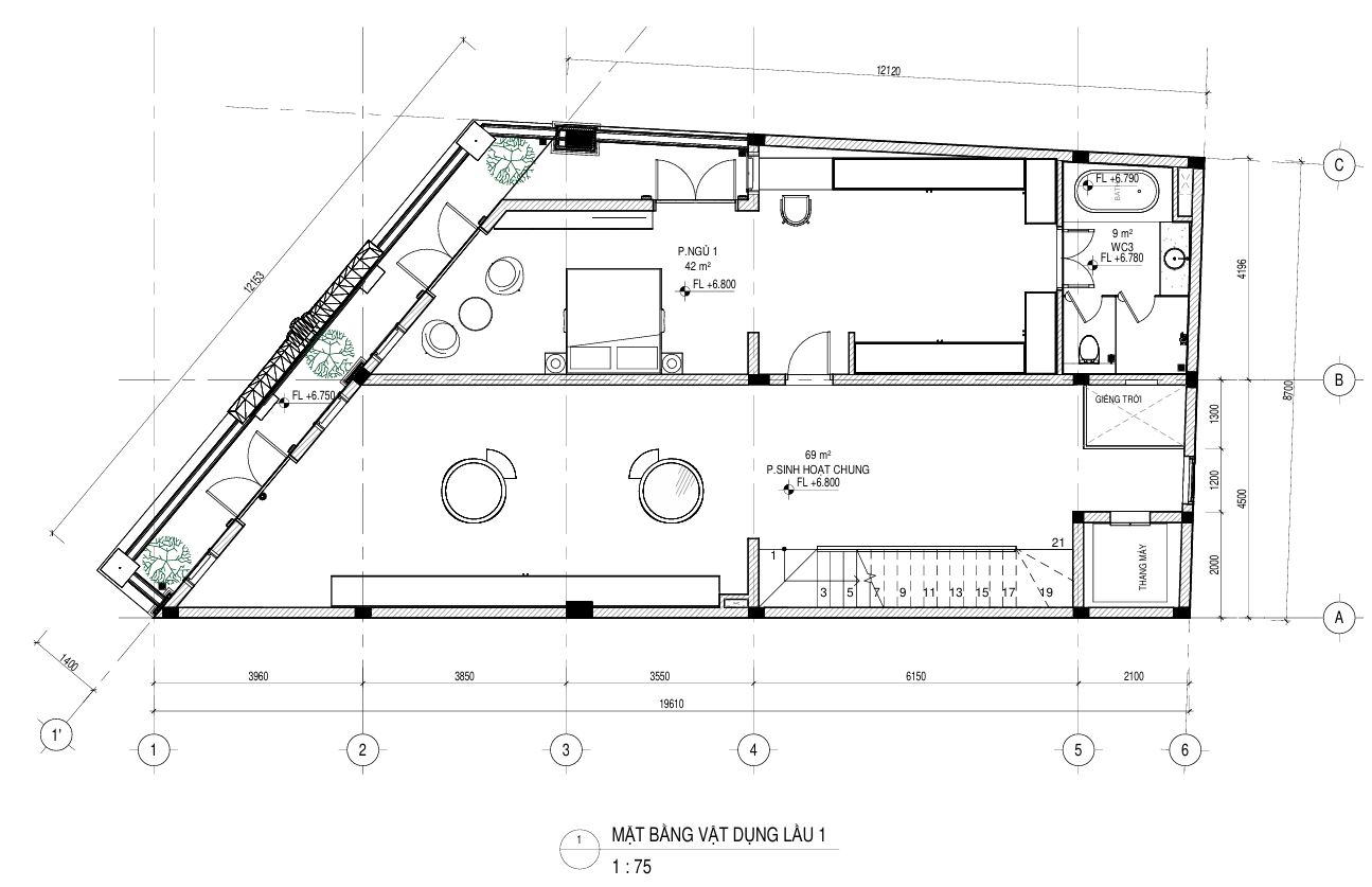
Kim Sơn là công trình thiết kế nhà ở kết hợp kinh doanh . Tầng trệt gia chủ sử dụng với mục đích kinh doanh mua bán . Tầng lửng, 2, 3, và sân thượng để ở và sinh hoạt gia đình.
#Kiến Trúc Đan#
#nhaokethopkinhdoanh#
#nhadep#
| Tên dự án | THAOSHOPHOUSE |
| Chủ đầu tư | Nguyen Thao |
| Địa chỉ | Bà rịa vũng tàu |
| Diện tích sàn xây dựng | 500m2 |
| Đơn vị thiết kế | Kiến Trúc Đan |
| Đơn vị thi công | LDH |
| Ngày bàn giao | 2024 |
| Phong cách thiết kế | Hiện Đại |
| Mã dự án | DAN24002 |


