TINH HOUSE
Nhà nghỉ dưỡng ở quê là những ngôi nhà được các gia đình xây dựng tại ở những vùng ngoại thành, nông thôn yên bình với mưc đích thư giãn và nghỉ ngơi. Và tùy thuộc theo nhu cầu của mỗi gia đình mà những công trình này được thiết kế với quy mô khác nhau nhưng lại được đặc biệt chú trọng đề cao đến thiết kế cảnh quan xung quanh. Với các không gian phụ xung quanh đều là những yếu tố có thể kết nối và hòa mình với không gian thiên nhiên như là bể bơi, sân vườn, ao hồ, tiểu cảnh,
Đặc biệt là các mẫu Nhà nghỉ dưỡng ở quê không có bất kỳ một kiểu dáng kiến trúc cụ thể mà tùy thuộc vào từng địa thế, không gian cũng như là nhu cầu và mức đầu tư mà mỗi gia đình sẽ có những phương án thiết kế riêng sao cho phù hợp để mang đến cho bản thân và gia đình một không gian sống hoàn hảo nhất
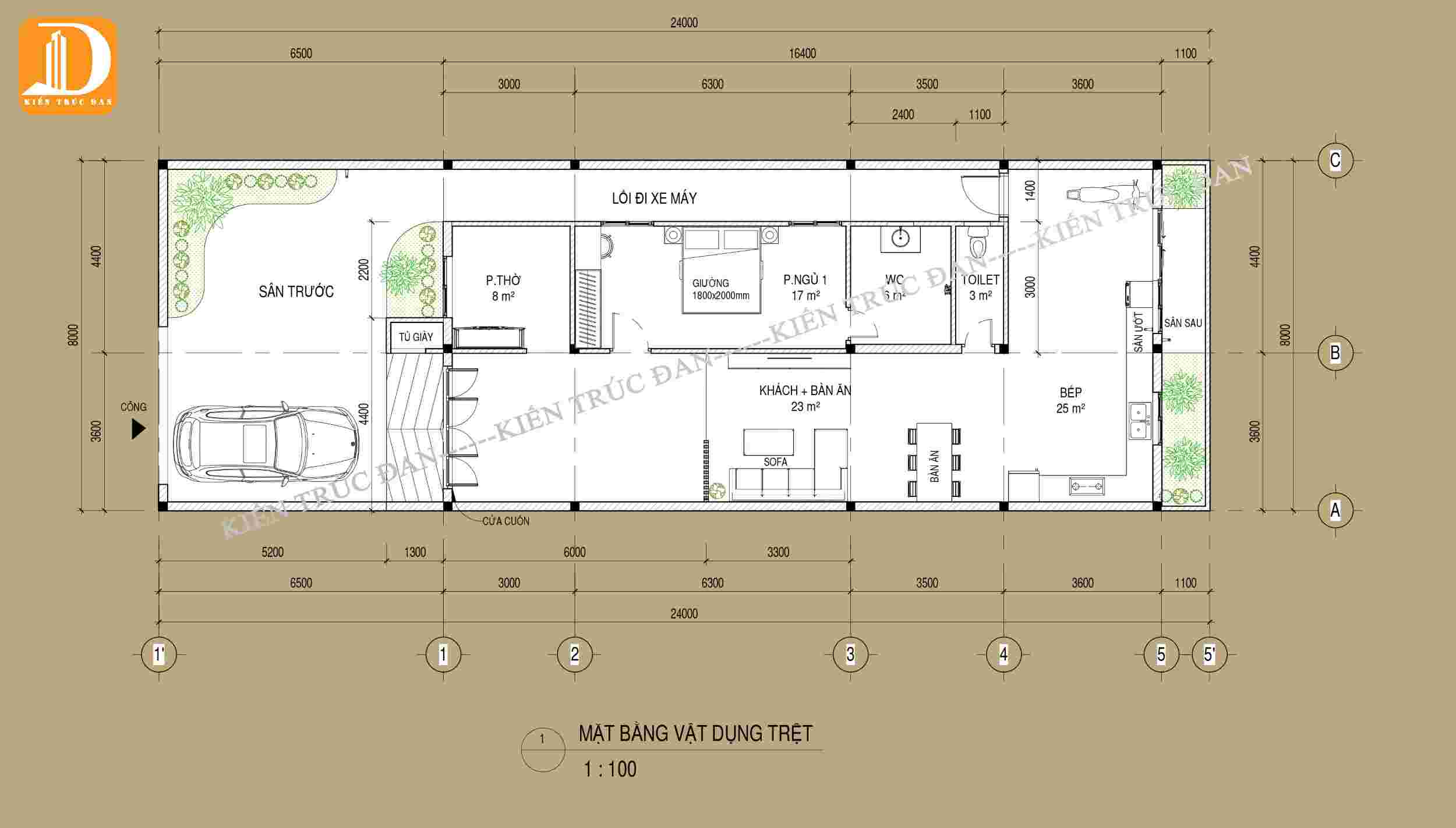
Tịnh house là một ngôi nhà nghỉ dưỡng nhỏ ở Tiền Giang
#Kiến Trúc Đan#
#nhanghiduong#
#nhavuon#
#KTSHoangnga#
#nhadep#
#nhaantuong#
#nhaxinh#
#nhacap4#
| Tên dự án | TINH HOUSE |
| Chủ đầu tư | Mr Tịnh |
| Địa chỉ | Tỉnh Tiền Giang |
| Diện tích sàn xây dựng | 74m2 |
| Đơn vị thiết kế | Kiến Trúc Đan |
| Đơn vị thi công | Anhuycons |
| Ngày bàn giao | 2023 |
| Phong cách thiết kế | Hiện đại |
| Mã dự án | DAN23010 |


